Preise und Baustelleninformationen

ParzelleunerschlossenErschließungskostenGrundstückspreis
FlurNr.LageGröße m²Preis/m²GrundstückspreisStraßeKanalinsgesamtDurchschnitt € / m²
318Mühlenweg815wird zur Zeit erschlossen15 € m2 + Erschließungskosten
319Mühlenweg812wird zur Zeit erschlossen15 € m2 + Erschließungskosten
320Mühlenweg786wird zur Zeit erschlossen15 € m2 + Erschließungskosten
326Mühlenweg785wird zur Zeit erschlossen15 € m2 + Erschließungskosten
327Mühlenweg605wird zur Zeit erschlossen15 € m2 + Erschließungskosten
328Mühlenweg667wird zur Zeit erschlossen15 € m2 + Erschließungskosten
329Mühlenweg731wird zur Zeit erschlossen15 € m2 + Erschließungskosten
330Mühlenweg731wird zur Zeit erschlossen15 € m2 + Erschließungskosten
331Mühlenweg721wird zur Zeit erschlossen15 € m2 + Erschließungskosten
2 und Flur 3471 und 121/2Mühlenweg617wird zur Zeit erschlossen15 € m2 + Erschließungskosten

Weitere Infos und Bilder

Ein Klick auf ein Bild vergrößert dies in einem eigenen Fenster.
Die Baustellen im Eigentum der Ortsgemeinde, Nr. 18, 19, 20, 26, 27, 28, 29, 30 und Nr. 31 sowie die Baustelle ohne Nummer
befinden sich
im Neubaugebiet "auf den Benden"
sind aber zur Zeit noch nicht bebaubar.
Die Erschließung der Planstraße "A" ist im Bau.
Fertigstellung etwa Juni/Juli 2026.



Beispielbild von Planstraße "A"
befindet sich
im Neubaugebiet "auf den Benden"
ist zur Zeit jedoch noch nicht bebaubar.



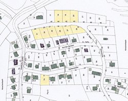
Lageplan
des Neubaugebietes - Stand: Dezember 2022
(zum Vergrößern bitte den Plan anklicken)



Gesamtansicht
Blick auf die Ortslage mit dem Baugebiet vom Feriendorf / Killerberg